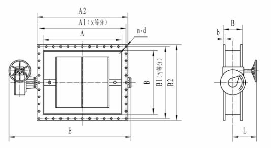
外形图:Outline

外形连接尺寸:Profile dimensions
|
A×B
|
A1×B1
|
A2×B2
|
B
|
b
|
n-d
|
X
|
Y
|
E
|
L
|
|
200×200
|
245×245
|
280×280
|
180
|
8
|
8- Φ12
|
2
|
2
|
745
|
180
|
|
250×250
|
305×305
|
350×350
|
180
|
8
|
12- Φ12
|
3
|
3
|
795
|
180
|
|
320×250
|
375×305
|
420×350
|
180
|
8
|
12- Φ12
|
3
|
3
|
885
|
180
|
|
320×320
|
375×375
|
420×420
|
180
|
8
|
12- Φ12
|
3
|
3
|
885
|
180
|
|
400×320
|
455×375
|
500×420
|
180
|
8
|
14- Φ14
|
4
|
3
|
1015
|
180
|
|
400×400
|
455×455
|
500×500
|
200
|
10
|
16- Φ14
|
4
|
4
|
1015
|
180
|
|
500×320
|
555×375
|
600×420
|
200
|
10
|
16- Φ14
|
5
|
3
|
1115
|
180
|
|
500×400
|
555×455
|
600×500
|
200
|
10
|
18- Φ14
|
5
|
4
|
1115
|
180
|
|
500×500
|
555×555
|
600×600
|
200
|
10
|
20- Φ14
|
5
|
5
|
1115
|
180
|
|
630×320
|
685×375
|
730×420
|
200
|
10
|
18- Φ14
|
6
|
3
|
1155
|
180
|
|
630×400
|
685×455
|
730×500
|
200
|
10
|
20- Φ14
|
6
|
4
|
1155
|
180
|
|
630×500
|
685×555
|
730×600
|
200
|
10
|
22- Φ14
|
6
|
5
|
1155
|
180
|
|
630×630
|
685×685
|
730×730
|
220
|
10
|
24- Φ14
|
6
|
6
|
1155
|
250
|
|
800×400
|
855×455
|
900×500
|
220
|
10
|
22- Φ14
|
7
|
4
|
1535
|
250
|
|
800×500
|
855×555
|
900×600
|
220
|
10
|
24- Φ14
|
7
|
5
|
1535
|
250
|
|
800×630
|
855×685
|
900×730
|
220
|
10
|
26- Φ14
|
7
|
6
|
1535
|
250
|
|
800×800
|
855×855
|
900×900
|
220
|
10
|
28- Φ14
|
7
|
7
|
1535
|
250
|
|
1000×400
|
1070×470
|
1130×530
|
220
|
12
|
22- Φ18
|
8
|
3
|
1675
|
250
|
|
1000×500
|
1070×570
|
1130×630
|
220
|
12
|
24- Φ18
|
8
|
4
|
1675
|
250
|
|
1000×630
|
1070×700
|
1130×760
|
220
|
12
|
26- Φ18
|
8
|
5
|
1675
|
250
|
|
1000×800
|
1070×870
|
1130×930
|
260
|
12
|
28- Φ18
|
8
|
6
|
1675
|
300
|
|
1000×1000
|
1070×1070
|
1130×1130
|
260
|
12
|
32- Φ18
|
8
|
8
|
1675
|
300
|
|
1250×400
|
1320×470
|
1380×530
|
260
|
12
|
26- Φ18
|
10
|
3
|
1975
|
300
|
|
1250×500
|
1320×570
|
1380×630
|
260
|
12
|
28- Φ18
|
10
|
4
|
1975
|
300
|
|
1250×630
|
1320×700
|
1380×760
|
260
|
12
|
30- Φ18
|
10
|
5
|
1975
|
300
|
|
1250×800
|
1320×870
|
1380×930
|
260
|
12
|
32- Φ18
|
10
|
6
|
1975
|
300
|
|
1250×1000
|
1320×1070
|
1380×1130
|
300
|
12
|
36- Φ22
|
10
|
8
|
1975
|
300
|
|
1600×630
|
1670×700
|
1730×760
|
300
|
12
|
36- Φ22
|
13
|
5
|
2295
|
300
|
|
1600×800
|
1670×870
|
1730×930
|
300
|
12
|
38- Φ22
|
13
|
6
|
2295
|
350
|
|
1600×1250
|
1670×1320
|
1730×1380
|
340
|
12
|
46- Φ22
|
13
|
10
|
2295
|
350
|
|
2000×800
|
2070×870
|
2130×930
|
340
|
16
|
42- Φ22
|
15
|
6
|
3005
|
350
|
|
2000×1000
|
2070×1070
|
2130×1130
|
340
|
16
|
46- Φ22
|
15
|
8
|
3005
|
350
|