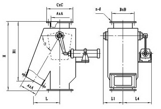
QTH-Ⅰ外形图:Outline

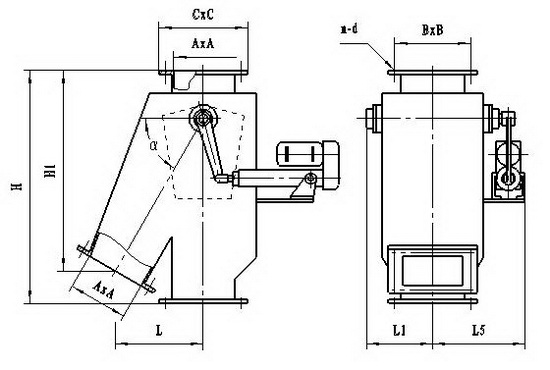
YTH-Ⅰ外形图:Outline

TH-Ⅰ外形连接尺寸:Profile dimensions
|
A
|
B
|
C
|
α
|
H
|
H1
|
L
|
n-d
|
L1
|
L2
|
L3
|
L4
|
L5
|
|
200×200
|
245×245
|
280×280
|
45º
|
620
|
510
|
290
|
8-Φ10
|
180
|
200
|
270
|
300
|
320
|
|
50º
|
680
|
529
|
286
|
|
55º
|
725
|
575
|
283
|
|
60º
|
770
|
617
|
280
|
|
250×250
|
305×305
|
350×350
|
45º
|
755
|
603
|
348
|
12-Φ10
|
220
|
250
|
320
|
350
|
380
|
|
50º
|
800
|
640
|
335
|
|
55º
|
830
|
699
|
329
|
|
60º
|
860
|
771
|
318
|
|
300×300
|
355×355
|
400×400
|
45º
|
900
|
724
|
418
|
12-Φ12
|
240
|
265
|
330
|
400
|
430
|
|
50º
|
935
|
768
|
402
|
|
55º
|
1035
|
926
|
381
|
|
60º
|
1035
|
926
|
381
|
|
400×400
|
455×455
|
500×500
|
45º
|
1120
|
920
|
543
|
16-Φ12
|
300
|
325
|
380
|
450
|
485
|
|
50º
|
1200
|
996
|
529
|
|
55º
|
1270
|
1103
|
526
|
|
60º
|
1355
|
1209
|
508
|
|
500×500
|
555×555
|
600×600
|
45º
|
1355
|
1096
|
643
|
20-Φ14
|
350
|
400
|
450
|
500
|
550
|
|
50º
|
1439
|
1189
|
635
|
|
55º
|
1560
|
1337
|
628
|
|
60º
|
1630
|
1448
|
610
|
|
600×600
|
655×655
|
700×700
|
45º
|
1630
|
1315
|
772
|
20-Φ14
|
400
|
450
|
500
|
550
|
600
|
|
50º
|
1725
|
1427
|
763
|
|
55º
|
1870
|
1605
|
754
|
|
60º
|
1960
|
1737
|
732
|
|
700×700
|
755×755
|
800×800
|
45º
|
1900
|
1535
|
900
|
20-Φ14
|
450
|
500
|
550
|
600
|
660
|
|
50º
|
2010
|
1665
|
890
|
|
55º
|
2180
|
1827
|
880
|
|
60º
|
2370
|
2027
|
854
|
|
800×800
|
855×855
|
900×900
|
45º
|
2170
|
1753
|
1029
|
24-Φ14
|
500
|
550
|
600
|
650
|
720
|
|
50º
|
2300
|
1903
|
1016
|
|
55º
|
2490
|
2139
|
1028
|
|
60º
|
2614
|
2317
|
976
|