技术参数表:Technical Data Sheet
|
技术性能 Name
|
技术参数Parameters
|
|
公称压力 PN
|
0.01MPa
|
|
适用物料比重 medium gravity
|
≤2.5t/m3
|
|
适用温度Temperature
|
≤300℃
|
|
适用介质Medium
|
晶粒、颗粒、粉状物料等 Crystal, grain and powder etc
|
|
规格Spec
|
200~250
|
300~400
|
500~600
|
700~800
|
|
气动推杆pneumatic
|
10A-5TC63B
|
10A-5TC80B
|
10A-5TC100B
|
10A-5TC125B
|
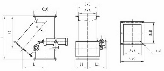
外形图:Outline

外形连接尺寸:Profile dimensions
|
A
|
B
|
C
|
α
|
H
|
H1
|
L
|
n-d
|
L1
|
L2
|
|
200×200
|
245×245
|
280×280
|
45º
|
530
|
394
|
289
|
8-Φ10
|
180
|
320
|
|
50º
|
600
|
445
|
293
|
|
55º
|
650
|
505
|
290
|
|
60º
|
735
|
594
|
295
|
|
250×250
|
305×305
|
350×350
|
45º
|
605
|
448
|
338
|
12-Φ10
|
220
|
345
|
|
50º
|
675
|
512
|
342
|
|
55º
|
735
|
595
|
346
|
|
60º
|
820
|
706
|
355
|
|
300×300
|
355×355
|
400×400
|
45º
|
690
|
499
|
374
|
12-Φ12
|
250
|
370
|
|
50º
|
750
|
568
|
380
|
|
55º
|
820
|
658
|
380
|
|
60º
|
910
|
791
|
405
|
|
400×400
|
455×455
|
500×500
|
45º
|
825
|
598
|
463
|
16-Φ12
|
280
|
420
|
|
50º
|
930
|
709
|
490
|
|
55º
|
1020
|
859
|
504
|
|
60º
|
1155
|
1005
|
505
|
|
500×500
|
555×555
|
600×600
|
45º
|
1000
|
755
|
575
|
20-Φ14
|
350
|
500
|
|
50º
|
1110
|
888
|
597
|
|
55º
|
1250
|
1052
|
632
|
|
60º
|
1425
|
1260
|
647
|
|
600×600
|
655×655
|
700×700
|
45º
|
1297
|
921
|
706
|
20-Φ14
|
400
|
550
|
|
50º
|
1430
|
1097
|
742
|
|
55º
|
1500
|
1223
|
731
|
|
60º
|
1677
|
1481
|
768
|
|
700×700
|
755×755
|
800×800
|
45º
|
1450
|
1029
|
779
|
20-Φ14
|
450
|
620
|
|
50º
|
1520
|
1163
|
809
|
|
55º
|
1708
|
1421
|
850
|
|
60º
|
1863
|
1646
|
850
|
|
800×800
|
855×855
|
900×900
|
45º
|
1555
|
1125
|
860
|
24-Φ14
|
500
|
670
|
|
50º
|
1702
|
1327
|
907
|
|
55º
|
1892
|
1594
|
946
|
|
60º
|
2145
|
1885
|
913
|