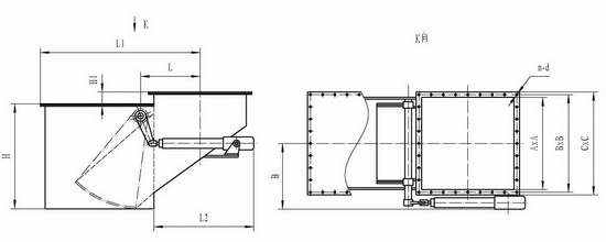
外形图:Outline

外形连接尺寸:Profile dimensions
|
A×A
|
400×400
|
500×500
|
600×600
|
700×700
|
800×800
|
900×900
|
1000×1000
|
|
B×B
|
455×455
|
555×555
|
655×655
|
755×755
|
855×855
|
955×955
|
1070×1070
|
|
C×C
|
500×500
|
600×600
|
700×700
|
800×800
|
900×900
|
1000×1000
|
1130×1130
|
|
H
|
540
|
680
|
750
|
900
|
1050
|
1300
|
1500
|
|
H1
|
60
|
70
|
80
|
80
|
90
|
90
|
100
|
|
L
|
350
|
400
|
450
|
500
|
550
|
600
|
650
|
|
L1
|
900
|
1050
|
1300
|
1450
|
1600
|
1750
|
1900
|
|
L2
|
1175
|
1220
|
1220
|
1340
|
1340
|
1520
|
1520
|
|
n-d
|
16-Ф12
|
20-Ф14
|
20-Ф14
|
20-Ф14
|
24-Ф14
|
24-Ф14
|
28-Ф18
|
|
B
|
350
|
400
|
450
|
550
|
600
|
680
|
730
|