技术参数表:Technical Data Sheet
|
适用温度
Temperature
|
堆集比重
Medium gravity
|
适用介质
Medium
|
|
≤300℃
|
≤2.5t/m3
|
晶料固体、煤炭、焦炭、灰渣、化工产品及各类矿石
Crystal, coal, coke, dust slag, chemical product and all kinds of ore
|
|
规 格Type
|
300~400
|
500~600
|
700~800
|
900~1000
|
|
电动推杆
Electric
|
5000N
|
7000N
|
10000N
|
1500N
|
|
电液动推杆
Electric hydraulic
|
5000N
|
7000N
|
10000N
|
1500N
|
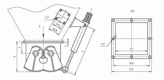
外形图:Outline

外形连接尺寸:Profile dimensions
|
A×A
|
B×B
|
C×C
|
b
|
E
|
F
|
n-d
|
H
|
N
|
M
|
Ф
|
|
300×300
|
355×355
|
400×400
|
8
|
100
|
400
|
12-Φ12
|
300
|
260
|
320
|
26
|
|
400×400
|
455×455
|
500×500
|
8
|
120
|
460
|
16-Φ14
|
360
|
260
|
320
|
26
|
|
500×500
|
555×555
|
600×600
|
10
|
150
|
510
|
20-Φ14
|
480
|
260
|
320
|
26
|
|
600×600
|
655×655
|
700×700
|
10
|
180
|
560
|
20-Φ14
|
600
|
260
|
320
|
26
|
|
700×700
|
755×755
|
800×800
|
12
|
220
|
610
|
20-Φ14
|
660
|
420
|
360
|
32
|
|
800×800
|
855×855
|
900×900
|
12
|
240
|
660
|
24-Φ14
|
760
|
420
|
360
|
32
|
|
900×900
|
955×955
|
1000×1000
|
14
|
280
|
720
|
24-Φ14
|
900
|
420
|
360
|
32
|
|
1000×1000
|
1070×1070
|
1130×1130
|
14
|
350
|
880
|
28-Φ18
|
1040
|
420
|
360
|
32
|