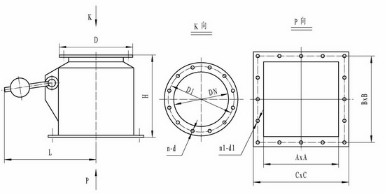
外形图:Outline

外形连接尺寸:Profile dimensions
|
DN
|
D
|
D1
|
H
|
A×A
|
B×B
|
C×C
|
n-d
|
n1-d1
|
L
|
|
200
|
280
|
245
|
400
|
300×300
|
355×355
|
400×400
|
8-Φ10
|
12-Φ10
|
500
|
|
250
|
350
|
305
|
450
|
350×350
|
405×405
|
450×450
|
12-Φ10
|
12-Φ10
|
550
|
|
300
|
400
|
355
|
500
|
400×400
|
455×455
|
500×500
|
12-Φ10
|
16-Φ10
|
600
|
|
350
|
450
|
405
|
550
|
450×450
|
505×505
|
550×550
|
12-Φ12
|
16-Φ12
|
650
|
|
400
|
500
|
455
|
600
|
500×500
|
555×555
|
600×600
|
16-Φ12
|
20-Φ12
|
815
|
|
500
|
600
|
555
|
700
|
600×600
|
655×655
|
700×700
|
20-Φ14
|
20-Φ14
|
870
|